Котел КВм 3.0 с ТЛПХ в Курске
- Модель с механической топкой прямого хода с ленточным колосниковым полотном ТЛПХ
- Работа на каменном и буром угле повышенной влажности
- Полностью автоматизированная работа – подача и равномерное распределение топлива, механическое золоудаление
- Надежная работа котла обеспечивается изготовлением трубной системы из трубы сталь 10 повышенной прочности
- Удобные люки для очистки поверхностей нагрева
характеристики
товара
поставки
оборудование
подключения
и гарантии
котла
Технические характеристики котла КВм 3.0 с ТЛПХ
Механический котел КВм 3.0 МВт с топкой ТЛПХ в Курске
Российский котел КВм с топкой ТЛПХ мощностью 3.0 МВт предназначен для отопления и горячего водоснабжения жилых и административных зданий, больших промышленных помещений и производственных предприятий, работает с принудительной циркуляцией теплоносителя в закрытых и в открытых системах теплоснабжения. Котел работает в механизированных котельных с механической подачей топлива и золошлакоудалением.
Промышленный отопительный котел 3.0 МВт ТЛПХ с механической регулировкой обеспечивает подогрев воды температурой до 95-115 °С, с рабочим давлением 0,3-0,6 (3,0-6,0) МПа (кгс/см). Площадь отапливаемого помещения 25000 – 32900 м2.
Принцип работы механического котла КВм 3.0 МВт с ленточной колосниковой решеткой прямого хода ТЛПХ
Водогрейный твердотопливный котел 3.0 МВт с топкой ТЛПХ производит полностью механизированную подачу топлива и удаление шлака. Топливо поступает в бункер топки транспортером, затем самотеком распределяется по движущейся колосниковой решетке слоем 100 – 200 мм. Толщина слоя регулируется вручную посредством редуктора. Количество подаваемого топлива регулируется изменением скорости движения колосникового полотна.
Во избежание спекания слоя топлива и деформацию колосников, необходимо организовать непрерывную подачу воздуха под колосниковую решетку при помощи вентилятора и воздушных шиберов.
Дымовые газы через окно расположенное на задней стенке топки выходят из топочной камеры. Пройдя две конвективные ступени, дымовые газы выводятся в выходное окно на задней стенке котла. Для очистки конвективных поверхностей нагрева от сажистых и золовых отложений в обшивке котла предусмотрены удобные люки.
Удаление шлака с колосниковой решетки производится за счет движения колосникового полотна в канал шлакозолоудаления.
Котельный блок
Водонагревательный автоматический котел КВм 3.0 МВт с ТЛПХ на угле выполняется из двух блоков – котельный блок и топка с цепной ленточной колосниковой решеткой прямого хода ТЛПХ.
Котельный блок представляет собой гладкотрубную горизонтальную стальную конструкцию, состоящую из трубной системы и каркаса с теплоизоляционными материалами, обшитого листовой сталью. Топочная часть выполняется из газоплотных водотрубных экранов, а конвективная состоит из сварных конвективных панелей и параллельно установленных в шахматном порядке труб. Сбоку котельного блока устанавливаются топочные дверки для контроля топочного процесса и обслуживания топки ТЛПХ.
Топочная часть
Водогрейный угольный котел КВм 3.0 с механической топкой ТЛПХ изготавливается с большим объемом топочной камеры, что позволяет полностью прогорать топливу, без выноса золы в конвективную часть и дымовую трубу. Газоплотное исполнение топки исключает утечку дымовых газов в котельный зал. Развитая поверхность нагрева котла, снижает температуру уходящих газов до 200-180 °С, тем самым максимально уменьшая теплопотери. Качественная теплоизоляция исключает присосы холодного воздуха. При помощи движущегося колосникового полотна происходит удаление шлака в канал шлакоудаления. Удаление шлака из шлакового канала производится транспортером шлакозолоудаления.
Топка ТЛПХ
Механическая топка ТЛПХ состоит из рамы с приводом, угольного ящика, ведомых и ведущих валов, ленточного колосникового полотна.
Колосниковое полотно набирается из трех типов колосников: крайних, ведущих и ведомых. Угольный ящик крепиться в передней части топки. Под колосниковой решеткой организованы камеры, куда подается необходимый воздух для горения. Подача воздуха обязательно должна быть непрерывна, иначе происходит спекание слоя и пережог колосников. Количество подаваемого воздуха регулируется величиной открывания воздушных шиберов.
На боковых панелях топки предусмотрены дверки для наблюдения за слоем топлива. Для удаления золы и шлака топка оснащена удобными люками.
Подсушка топлива, при поступлении на колосниковую решетку, позволяет работать с влажным топливом без температурных колебаний.
Конвективные поверхности нагрева
Трубы в конвективной части располагаются в шахматном порядке. Это обеспечивает более интенсивное и полное омывание труб горячими газами. Газы в конвективной части проходят два хода и выходят через газоход в верхней части задней стенки агрегата.
Промышленный нагревательный автоматический котел КВм 3 0 МВт с топкой ТЛПХ имеет развитую конвективную часть, которая снижает температуру уходящих газов из котла до 200 -180 °С. Значительное снижение температуры уходящих газов исключает теплопотери, тем самым обеспечивая значительную экономию топлива.
Конвективную часть можно рассматривать как экономайзер. Гидравлическая схема наших котлов позволяет использовать принцип противотока, передавая тепло уходящих газов теплоносителю.
Трубная система имеет множество перегородок, для увеличения скорости воды в котле и исключения застойных зон и локального перегрева поверхностей нагрева. Кроме того, турбулизация водяного потока препятствует образованию пристенного кипения и отложения накипи на поверхностях нагрева. А многоходовая циркуляция позволяет избежать неравномерного прогрева котла. Твердотопливные водонагревательные механические котлы 3.0 МВт ТЛПХ работают с принудительной циркуляцией теплоносителя, которую обеспечивает сетевой насос.
Качественная изоляция
Стальной отопительный котел КВм 3,0 МВт с ТЛПХ на твердом топливе выполнен со съемной, облегченной изоляцией из плит ПТЭ. Плиты закрепляются на каркасе, обшивка теплоагрегата выполняется из стальных листов. Преимущества легкой изоляции - максимальная монтажная готовность котельного блока, его компактность, минимизация потерь КПД котла через потери тепла в окружающую среду, за счет высокого качества обмуровки.
Монтаж и комплектация
Цена на отечественный механический котел КВм 3.0 МВт с ТЛПХ для отопления включает котельный блок, топку, шурующую планку, вентилятор поддува, вентили, предохранительные клапаны, термометры, манометры, трехходовые краны, паспорт и инструкцию по эксплуатации. Котлоагрегат поставляется блоками максимальной заводской готовности.
Стационарный водогрейный автоматический котел 3,0 МВт с ленточной колосниковой решеткой прямого хода ТЛПХ устанавливается в котельной на специально подготовленную ровную поверхность и закрепляется анкерными болтами. Далее подсоединяется по воде, устанавливается запорная арматура на подводящем и отводящем трубопроводе, устанавливаются предохранительные клапаны, дренажи, воздушники и контрольно измерительные приборы. В воздушный короб по месту врезается вентилятор, монтируется газоход.
Купить котел КВм 3.0 МВт с ТЛПХ
Для того, что бы купить механический котел 3.0 МВт с топкой ТЛПХ в Курске вы можете сделать заявку в отдел сбыта по телефону 8-800-700-06-43, либо оформить заявку . Менеджеры дадут консультацию по подбору вспомогательного оборудования для выбранных вами моделей и рассчитают стоимость доставки. Транспортирование котлоагрегата и вспомогательного оборудования может осуществляться автотранспортом, ж/д полувагонами и речным транспортом.
Комплект поставки котла КВм 3.0 с ТЛПХ
Цена водогрейного котла КВм 3.0 с ТЛПХ включает в себя запорную арматуру и КИП в пределах котла, вентилятор поддува и предохранительные клапаны. Ниже приведена подробная информация.
Дополнительное оборудование котла КВм 3.0 с ТЛПХ
Для эффективной и надежной работы котла КВм 3.0 с ТЛПХ вам потребуется дополнительное оборудование - автоматика, дымосос, золоуловитель, насос сетевой и подпиточный, газоходы и переходники для газового тракта, дымовая труба. Мы предлагаем рассмотреть типовые варианты комплектации. В случае если у вас на объекте имеется насосное и тягодутьевое оборудование, мы можем проверить совместимость котла КВм 3.0 с ТЛПХ нашего производства и вашего оборудования. Можем изготовить нестандартные узлы для выполнения быстрого монтажа котла - газоходы и узлы обвязки. Типовую схему монтажа котла вы можете посмотреть во вкладке схемы подключения.
Монтаж и схемы подключения котла КВм 3.0 с ТЛПХ
Водогрейный стальной отопительный котел КВм 3.0 с ТЛПХ, предназначен для получения горячей воды номинальной температурой на выходе из котла от 95 до 115 °С рабочим давлением до 0,6 (6,0) МПа (кгс/см), используемой в системах централизованного теплоснабжения на нужды отопления, горячего водоснабжения. Устанавливается в производственных, промышленных и отопительных котельных.
Монтаж и подключение котла КВм 3.0 с ТЛПХ
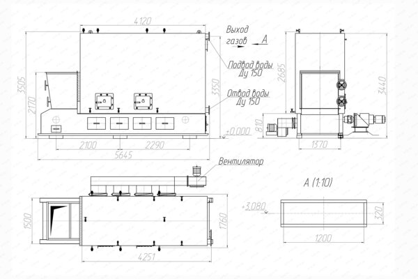
Схема подключения водогрейного котла КВм с топкой ТЛПХ для котельных
Тепловая схема подключения водогрейного котла КВм с топкой ТЛПХ
Тепловая схема подключения водогрейного котла КВм с топкой ТЛПХ для котельных
Сертификаты и гарантии котла КВм 3.0 с ТЛПХ
Водогрейный котел КВм 3.0 с ТЛПХ имеет гарантийный срок 24 месяца. Срок работы при соблюдении правил монтажа и эксплуатации оборудования 10 лет.